売買物件/鎌倉市/中古戸建
物件概要
- 物件種別
- 中古戸建
- 販売価格
- 8,580万円
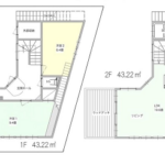
- 間取り
- 2LDK
- 建物構造
- 木造スレート葺2階建
- 土地面積
- 108.31㎡(約32.76坪)
- 建物面積
- 86.44㎡(約26.15坪)
- 築年月
- 2002年10月
- 現状
- 空家
所在地・交通
- 所在地
- 鎌倉市材木座5丁目
- 交通
- JR横須賀線「鎌倉」駅徒歩18分
JR横須賀線「鎌倉」駅バス6分「臨海学園」停歩4分
物件詳細
- 駐車場
- あり
- 接道状況
- 西側約4.5m公道
- 都市計画
- 市街化区域
- 建蔽率/容積率
- 60%/200%
- 土地権利
- 所有権
- 地目
- 宅地
- 取引態様
- 媒介
- 引渡日(予定日)
- 相談
- 用途地域
- 第一種住居地域
- 学区
- 第一小学校/第一中学校
- 情報更新日
- 2026年3月14日(次回更新日3月31日)
備考
第3種風致地区、景観地区











